Сделали навигацию для 30 клубов Spirit.Fitness и чуть не умерли со смеху. Так ещё никто не делал.

2025-09-04 23:19:32 Время чтения 19 мин 625

Два омских агентства объединились, чтобы сделать самую крутую навигацию для московского фитнес-клуба: «Климент Контент» и FERMA. Креативы для Spirit уже давно в нашем сердечке. В этот раз мы превратили абстрактную задачку в нечто масштабное и незаурядное.

Как родилась задача

Перед таким предложением было сложно устоять.

Spirit Fitness — сеть фитнес клубов, у которой более 30 точек в Москве, Санкт-Петербурге, Челябинске и Екатеринбурге. Все клубы выполнены в едином стиле, чтобы человек, который ходит заниматься спортом в разных районах, везде чувствовал себя как в знакомом месте.

Вместе с тем, у клубов есть чёткая линия коммуникации со своими клиентами: они ведут себя доброжелательно, профессионально и хотят оставлять у своих посетителей приятные впечатления от проведённого в их стенах времени.

Руководство клуба обратилось к нам, чтобы мы помогли рассказать их посетителям о своих сервисах, дополнительных возможностях и способах тренировок. Помимо стандартных навигационных элементов (где что лежит), было выдвинуто несколько бизнес-гипотез: как улучшить окружение и навигацию, как снизить затраты на содержание клуба с помощью навигации.

Как мы построили работу

Процесс: собираем боли, проблемы и возможности

Начать работу над проектом решили с недавно открывшегося филиала на ул. Севастопольская.

В первый день провели интервью с руководством сети, пообщались с администраторами и тренерами. Провели фотосессию на местности, сфотографировали и засняли каждый уголок клуба, со всех сторон, все стены, чтобы понимать, куда можно размещать надписи.

Запросили план по покраске помещений, чтобы знать, на каком цвете будут расположены надписи; план помещений, поэтажный план здания. Сделали схему правильного расположения указателей в помещениях.

Из общения с руководством, администраторами, тренерами, людьми собираем большую карту со всеми проблемами, болями, возможностями, что клуб может предложить. Подмечаем маленькие, но важные детали для посетителей. Всё это тщательно записываем и систематизируем, чтобы ничего не забыть.

Предлагаем тексты для каждой проблемы, вместе с управляющими сортируем и вычленяем наиболее важное для посетителей и для бизнеса. Всего более 400 записей, разбитых по зонам и помещениям клуба.

Коммуникационная концепция — «Так говорят люди»

Сначала мы просто искали прикольные выражения, которые бы заигрывали в зале со спортсменом и развлекали его. Например, такие:

  1. Раздевалка. «Если вы не помните, что забыли, то сейчас вспомните»;
  2. Сауна. «Посольство Финляндии на территории клуба Spirit. Федерация»;
  3. Зона силового оборудования. «Всё ещё достоин».

Получалось забавно, но у этого подхода не было объединяющей идеи. Так мы сформулировали концепцию «Так говорят люди».

Идея: обычно навигация просто показывает иконками, где ты находишься, и куда идти. Мы хотели сделать навигацию интерактивной, чтобы она разговаривала со спортсменом на его языке. И, конечно, с юмором: подписали каждую зону клуба фразами, которые возникают в голове, когда спортсмен туда приходит.

Ситуация – 1

Надпись на сканере, который показывает номер шкафчика, когда к нему прикладываешь браслет.

Ситуация – 2

Spirit. Fitness разрабатывает свои авторские групповые программы, и брендирует их своими названиями: BootyBlaster, HotTorso, ReCover LL.Названия непростые, а клиент упоминал, что люди запоминают их с трудом. Используем это:

Суперважно было написать именно кириллицей, ведь люди говорят по-русски. Также это добавляет комичности.

Ситуация – 3

Какие фразы чаще всего звучат в душе? Ими мы и подписали кабинки.

— Носа, носа, воси восе миматааа
— Дада, уже выехал
— Де-спа-сито, на-на-на-на-на-на… деспасито

Ситуация – 4

В женской раздевалке возле зеркала есть розетка, и девушки не всегда понимают, зачем она нужна. Подсветим это!

В мужской раздевалке такая надпись тоже бы зашла, если бы клуб разместил там PS5 :)

Ситуация – 6

С какой проблемой чаще всего сталкивается спортсмен в зоне свободных весов? Мы позаботились о том, чтобы решить это проблему:

Да, мы знаем, что правильно «гантель», но большинство людей так не говорят :)

В целом, весь подход к навигации переработан с императивов на создание условий, в которых человек сам придёт к нужному выводу. Так мы мягко управляем поведением клиентов: «Делай, пёс» → Создание условий.

Ситуация – 7

Просим не курить вейпы в раздевалках через узнаваемое противопоставление «Это не дым, это — пар». Спортсмен узнает в этом себя, а немного юмора сгладит императив. Само же требование не воспринимается требованием, потому что вейпер как бы наблюдает за диалогом, а не становится объектом требования. В то же время: если руководству клуба нужно будет сделать замечание вейперу, достаточно показать пальцем на небольшой диалог на стене, который видно отовсюду.

Вот как ещё мы изящно замаскировали требования и советы:

  1. «Прикрываться — не стыдно…» Фраза построена на хитром приёме «Переворот». Мы берём истинное отношение к явлению, а затем переворачиваем его, и мозг читателя чувствует несостыковку и стремится построить вывод. Получается, читатель сам приходит к нужной мысли, мы не сообщали ему её напрямую.
  1. «Пожалуйста, не оставляйте нас среди этих голых джентльменов! Ваши забытые вещи». После внедрения этой надписи, вещи стали оставлять на 80% реже. Вот что значит пробить слепоту. Был бы такой же эффект после унылого «Не оставляйте свои вещи»? Вряд ли.
  1. «Не разделяйте вешалки. Они любят жить по трое». Здесь мы одушевляем предметы, чтобы установить к некую связь между человеком и куском дерева с крючком. Конечно, это громко сказано, но это вызывает эмоции и помогает пробить слепоту.
  1. «Нет ничего благороднее, чем освобождать тренажер между подходами». Создаём ощущение, что настоящим рыцарем себя почувствует только тот, не занимает тренажеры между подходами.

Доступ в клуб

Доступ в клуб осуществляется по магнитным браслетам. Они же отпирают и запирают шкафчики в раздевалке. Чтобы любому было понятно, как им пользоваться, рассказали на плакате на входе, как его прикладывать к считывателю.

Сервисные кнопки

По всему клубу размещены сервисные кнопки. Если у человека появляется проблема, то скорее всего рядом с ним окажутся подобные кнопки. Такие кнопки помогут вызвать уборщика или просигнализируют руководству, что обещанной тренировки не было. А как важно, оказавшись запертым в кабинке, попросить закончившуюся бумагу :-)

Главный стенд

Для входной группы разработали стенд, который рассказывает о правилах поведения в клубе, режиме работы и зонах, на которые разбит клуб. Также обращает внимание на мобильное приложение клуба.

Надписи

Все надписи разделили на:

  1. информационные, которые рассказывают о пользе сервисов клуба;
  1. игровые надписи, которые в игровой форме подсказывают как нужно или не нужно себя вести или просто вызывают улыбку;
  1. навигационные, которые указывают направления.

Игровые надписи

Игровые надписи позволили нам вволю пошалить, решая задачи бизнеса. Например, в шкафчиках мы написали, что вешалок в шкафчиках должно быть три. Тем самым подталкивая людей не брать дополнительные или поделиться лишней.

Описали правила размещения игровых надписей на всех поверхностях: зеркалах, стенах, полу, — где бы их не вешали они должны быть заметны человеку.

Здесь мы одушевляем предметы, чтобы установить к некую связь между человеком и куском дерева с крючком. Конечно, это громко сказано, но это вызывает эмоции и помогает пробить слепоту.

Напольные надписи

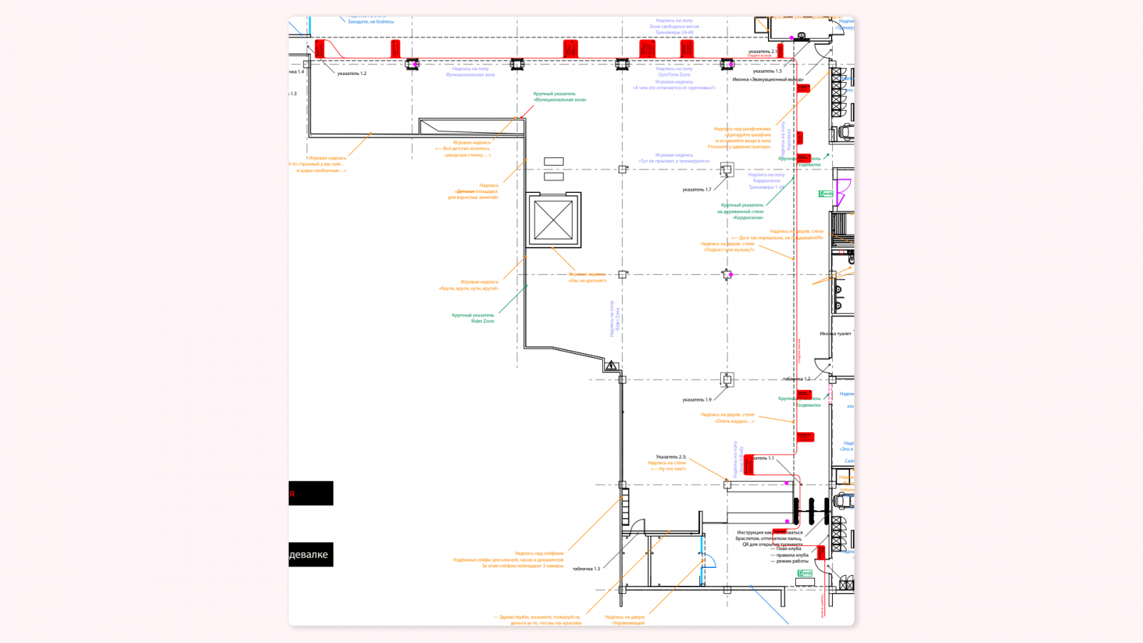
Весь клуб делится на зоны. где проходят различные активности и тренировки. Клуб специально разделен так, чтобы можно было через аудиосообщения управлять потоками людей. Например, после объявления. что в Rider zone начинается групповая тренировка, человеку известно, куда идти. Также по названиям легко определить какой тип тренировок здесь проходит: Cardio, Crossfit или Free weight тренировки.

Всего вышло более 70 надписей различного характера. Каждой мы нашли место на плане, прописали правила размещения, проверили, что они будут видны и полезны именно здесь и сейчас. Туалеты могут понадобиться человеку в любой момент, поэтому направление «Туалеты» встречается очень часто, чтобы люди не запутались.

Гантельный ряд и помощник для тренажеров

Руководство понимает, что легче помочь людям соблюдать общие правила, чем заставлять выполнять их. Поэтому мы придумали небольшие надписи у гантельного ряда, чтобы помочь людям правильно раскладывать гантели, чтобы тренерам не пришлось это делать самостоятельно. Также надписи на зеркалах подсказывают людям, что нужно возвращать гантели на место.

У каждого тренажера есть QR-код, который ведёт на приложение клуба, где рассказывается, какие упражнения можно делать на данном тренажере и как правильно их выполнять.

Нумерация и подсказки

Шкафчиков в раздевалках очень много: обычно более трехсот. При этом их высота не позволяет посмотреть над ними. Чтобы легче было ориентироваться, где именно находится твой шкафчик мы предложили вынести нумерацию высоко к потолку, чтобы номера было легко увидеть даже со входа в раздевалку.

Администраторы не могут следить с ресепшена за всем, что происходит в раздевалках, поэтому информационными надписями помогаем людям делать правильный выбор. Например, посетители жаловались, что некоторые люди ходят в раздевалке голыми. Мы не можем заставить всех одеваться, но подсказываем, как нужно поступать надписью: «Прикрываться — не стыдно».

Или, например, напоминаем о том, чтобы посетители не забыли свои вещи:

  1. В женской раздевалке: «Пожалуйста, не оставляйте нас! Ваши забытые вещи»;
  2. В мужской раздевалке: «Пожалуйста, не оставляйте нас среди этих голых джентльменов! Ваши забытые вещи».

Самоэкскурсия в Spirit. Fitness

У Spirit. Fitness 30 фитнес-центров. В среднем каждый день в каждый клуб приходят 3 человека, чтобы осмотреться и узнать, что в нём есть. Администратор тратит на каждого человека 5 минут, чтобы показать раздевалки, сауны, тренажеры, зоны и залы. Получается, что в месяц администраторы тратят 225 часов, чтобы провести экскурсии. В деньгах — это 2 ежемесячные зарплаты администратора. Теперь Spirit каждый месяц экономит 140 тысяч рублей, потому что администратор отправляет человека по маршруту, и он сам знакомится с клубом.

Интересный факт: ночью клубы также открыты для посещений. На вахте сидит только охранник, но администраторов и другого персонала нет. Навигация должна полностью заменять эти роли, чтобы человек мог самостоятельно воспользоваться всем необходимым.

Что же делать новичку, который пришел в клуб впервые и ещё не знает как всё устроено? Для него мы разработали навигационную экскурсию по клубу, которая доходчиво и просто расскажет, с чего начать и куда двигаться дальше. Это лента с подписями на полу, которая пересекает весь клуб, останавливаясь в важных местах. Красной линией показана экскурсия по клубу.

Профит от подобной «навигационной экскурсии»: снижение нагрузки на администраторов, так как до этого внедрения, роль экскурсовода играли именно они.

Что ещё

  1. Настенные памятки для расписания занятий и тестирования InBody;
  2. Вывески и иконки для каждой зоны;
  3. Игровые наклейки для туалетов с отсылкой к блогу, что можно провести время, пока не сильно занят;
  4. Множество наклеек-подсказок на дверях и пролетах;
  5. Наклейки на столбах с зарядками;
  6. Специальные конструкции на колонны для навигации;
  7. Множество иконок для всех сервисов клуба

Итог

Сделали понятную и весёлую навигацию по всем помещениям клуба и самоэксурсию, чтобы разгрузить администраторов и перенесли всё это на каждый клуб огромной сети. Благодарим наших партнёров Spirit. Fitness, что не побоялись реализовать эти смелые идеи.

А теперь мы хотим работать с вами!

Оставляйте заявку на нашем сайте → klmnt.online

Категории: Кейсы