Уникальные архитектурные решения для вашей современной виллы. Тренды в 2025 году.

2025-12-26 23:01:29 Время чтения 4 мин 4362

В современном мире дом перестал быть просто местом для проживания – это отражение вашей индивидуальности, пространство для реализации самых смелых идей и воплощения мечты об идеальном жилище. Предлагаем вам познакомиться с самыми интересными архитектурными решениями, которые помогут создать по-настоящему уникальную виллу.

Эко-минимализм: гармония с природой

Тренд на экологичность продолжает набирать обороты. Современные архитектурные решения предполагают использование натуральных материалов в сочетании с панорамным остеклением, что позволяет максимально интегрировать жилое пространство в окружающий ландшафт. Зеленые крыши, вертикальное озеленение фасадов и внутренние дворики-патио создают особую атмосферу единения с природой.

Функциональные планировочные решения

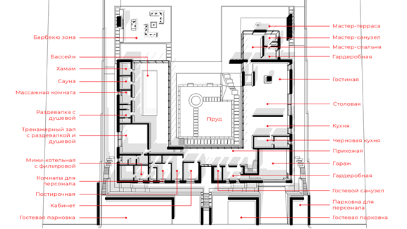
Функция выходит на первый план. Трансформируемые пространства и продуманная эргономика позволяют максимально эффективно использовать каждый квадратный метр. Организация зон СПА и ухода за собой задают ритм жизни своего владельца. Особую популярность приобретают второй свет в гостиной, консольно нависающие этажи и многофункциональные открытые пространства.

Энергоэффективные технологии

Современный коттедж немыслим без применения передовых технологий энергосбережения. Солнечные панели, тепловые насосы и умные системы управления микроклиматом не только сокращают расходы на содержание дома, но и повышают уровень комфорта проживания.

Индивидуальный подход к фасадным решениям

Комбинирование различных материалов и фактур позволяет создать неповторимый облик вашего дома. Натуральный камень, дерево, стекло и металл в оригинальных сочетаниях формируют запоминающийся архитектурный образ.

Открытые пространства и свет

Большие окна, световые фонари и продуманное зонирование наполняют дом естественным светом и создают ощущение простора. Грамотное расположение световых проемов позволяет наслаждаться видами из окон и стереть границу между домом и природой.

Воплотите мечту в реальность!

Хотите узнать, как реализовать эти идеи в вашем будущем доме? Приглашаем вас на бесплатную консультацию с нашим опытным архитектором. На встрече вы сможете:

  1. Обсудить ваши пожелания и идеи
  2. Получить профессиональные рекомендации по планировке и дизайну
  3. Узнать о примерной стоимости реализации проекта
  4. Познакомиться с нашим портфолио реализованных объектов

Запишитесь на консультацию прямо сейчас. Превратите мечту об идеальном доме в реальность вместе с нашими экспертами!

Ваш будущий дом – это не просто стены и крыша, это пространство для счастливой жизни. Доверьте его создание профессионалам!